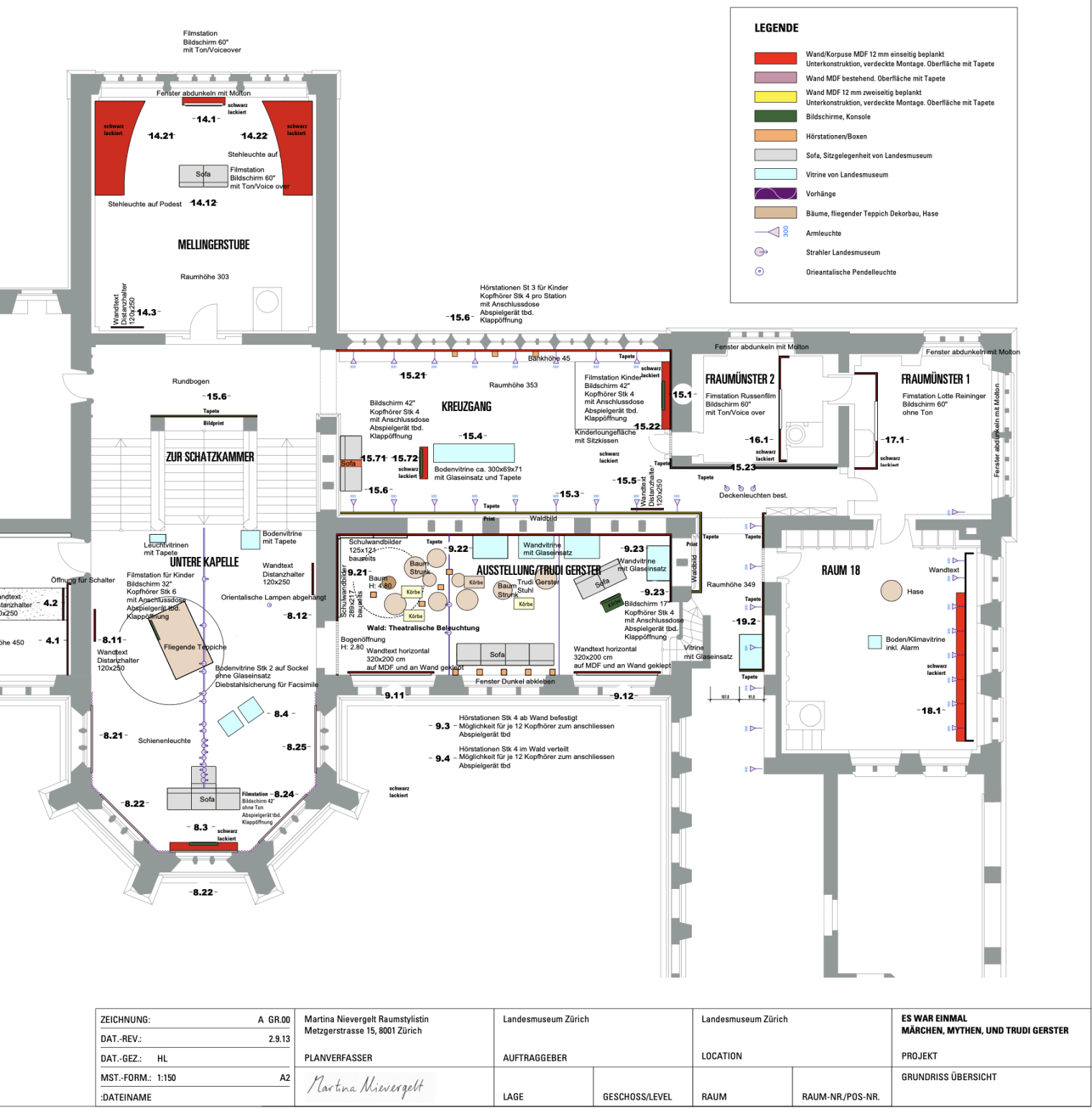
Märchen, Magie und Trudi Gerster
2016 2015
Projekt
Ausstellung: Märchen, Magie und Trudi Gerster
Kunde
Schweizerisches Nationalmuseum. Forum Schweizer Geschichte Schwyz
Funktion
Ausstellungskonzept | Szenografie
Ort
Zürich. Schwyz















Ausstellungsaufbau

Ausstellungsaufbau

Ausstellungsaufbau


Ausstellungsaufbau

Raumvisualisierung

Planansicht


Raumvisualisierung

Raumvisualisierung

Kinderraum



